Skan Holz Prístrešok na auto Emsland EPDM s odkl. priest. biely, 354 x 846 cm
Číslo výrobku 2081461Opis výrobku
Číslo výrobku 2081461
Prístrešky Skan Holz Emsland poskytujú vysoko kvalitnú ochranu proti poveternostným vplyvom a sú vyrobené zo škárovky (smrekových lepených trámov). Prístrešky s plochou strechou Emsland majú 12 x 12 cm hrubé stĺpiky vrátane kotviacich pätiek v tvare H na zabetónovanie. Strešná krytina je z 19 mm hrubého strešného obloženia s fóliou EPDM. Zakončenie strechy tvorí drevená lišta s hliníkovou zakončovacou hranou. Súčasťou dodávky je plastový odkvapový žľab s odkvapovým zvodom, montážny materiál a návod.
Konštrukcia
Konštrukcia je vyrobená zo škárovky (smrekových lepených trámov). Tvorí ju niekoľko vysušených vrstiev spojených po dĺžke klinovými čapmi. Spoje sú lepené a sú odolné proti poveternostným vplyvom. Tak vznikne nosný rám, ktorý je oproti drevu menej náchylný na tvorbu prasklín.
Farebná úprava
Nafarbené časti sú opatrené vysoko kvalitnou lazúrou alebo farbou. Tá chráni drevo proti modraniu, poškodeniu UV žiarením a obmedzuje napučaniu a rednutiu. Napriek tomu je štruktúra dreva stále viditeľná. Diely sú pri výrobe zo všetkých strán dvakrát polievané lazúrou a kartáčované.
Ihneď po dodaní, môžete okamžite začať so stavbou. Odpadá tak únavné penetrovanie a natieranie. V každom balení je priložené určité množstvo farby alebo lazúry na opravy. To využijete najmä pri poškodení alebo pri rezoch a skrutkových spojoch potrebných na montáž.
Pokiaľ chcete povrch ešte dodatočne vylepšiť, môžete ešte povrch prebrúsiť a potom natrieť kvalitnou lazúrou alebo farbou.
Zobrazenie farieb na fotografii sa môže mierne líšiť od skutočnosti. Stopy od opier dielov s celoplošným farebným náterom, sú technologicky dané.
Strešná krytina:
Strešná krytina je opatrená fóliou EPDM s hrúbkou 19 mm. EPDM fólia je bezpečná a trvanlivá strešná krytina s jednoduchou pokládkou na strechy s miernym sklonom. Vyznačuje sa dlhou životnosťou, vysokou pružnosťou a vynikajúcou odolnosťou voči UV žiareniu. Pokládka sa vykonáva v jednom kuse za studena pomocou priloženého lepidla.
Informácie o výrobcovi
SKAN HOLZ Europe GmbH
Im Alten Dorfe 10
21227 Bendestorf
info@skanholz.com
4018211022823
Technické špecifikácie
| Vlastnosti výrobku | |
|---|---|
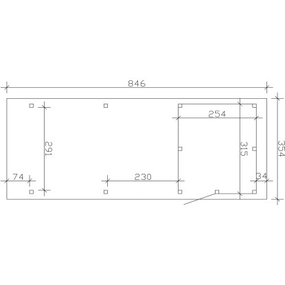
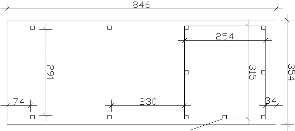
| Základná plocha: | 29,95 m² |
| Druh: | Samostatný prístrešok pre auto |
| Hrúbka stĺpa: | 12 x 12 cm |
| Zakrytie strechy: | Strešné debnenie so strešnou lepenkou z EPDM |
| Šírka čelný pohľad: | 354 cm |
| Výška vrcholu: | 238 cm |
| Šírka vjazdu: | 291 cm |
| Výška vjazdu: | 223 cm |
| Farba: | Biela |
| Druh dreva: | Smrek |
| Materiál konštrukcie: | Lepené drevo |
| Opracovanie povrchu: | Lazúrovaná |
| Zaťaženie snehom: | 105 kg/m² |
| Hrúbka steny: | 20 mm |
| Forma strechy: | Ploché |
| Smer sklonu strechy: | Vzadu |
| Počet požadovaných základov: | 11 základov |
| Odtok vody: | S dažďovým žliabkom a odkvapovou rúrou |
| Rozmery a hmotnosť (netto) | |
|---|---|
| Hmotnosť: | 1 246,0 kg |
| Výška: | 2,38 m |
| Šírka: | 3,54 m |
| Hĺbka: | 8,46 m |



















