Skan Holz Prístrešok na auto Grunewald ALU, bridlicovo sivý, 427 x 796 cm
Číslo výrobku 2080992Opis výrobku
Číslo výrobku 2080992
Prístrešok na auto Skan Holz Grunewald s plochou strechou je vyrobený z vysušeného smrekového dreva lepeného v niekoľkých vrstvách. Táto zmes je odolnejšia proti poveternostným vplyvom a je menej náchylná na praskanie ako prirodzené drevo. Prístrešky Grunewald sú k dispozícii v rôznych veľkostných a farebných variantoch - prírodný (neošetrený), orech, dub svetlý, bridlicovo sivý a biely. V prípade prírodného (neošetreného) dreva je bezpodmienečne nutný pravidelný ochranný náter proti napadnutiu hubami a hmyzom. Pred montážou je nutné použiť ochranný náter zo všetkých strán proti napadnutiu hubami a hmyzom, ochranu pred sfarbením a poškodením UV žiarením ako druhú vrstvu a ako finálny náter kvalitnú lazúru alebo farbu na drevo. Farebné varianty náterov sú už všetkými potrebnými nátermi opatrené.
Konštrukcia:
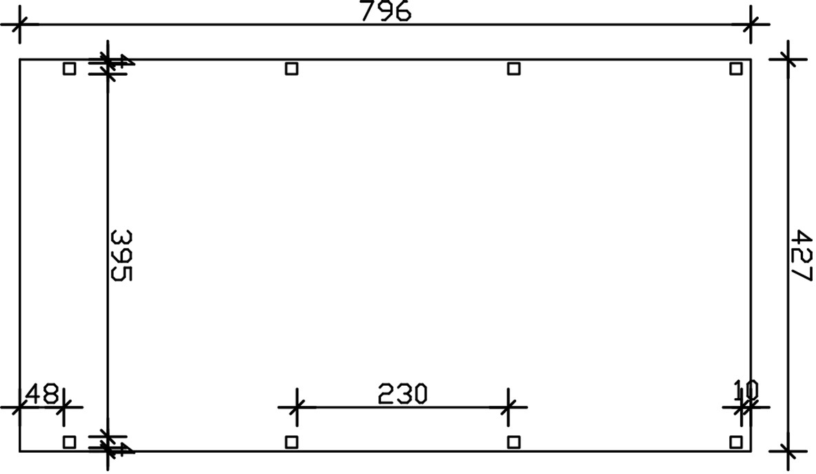
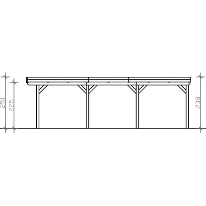
Prístrešky na auto Skan Holz Grunewald sú vyrobené z vysušeného smrekového dreva lepeného v niekoľkých vrstvách. Táto zmes je odolnejšia proti poveternostným vplyvom a je menej náchylná na praskanie ako prirodzené drevo. Stĺpiky prístrešku o rozmere 12 x 12 x 220 cm sú dodávané vrátane ukotvenia v tvare písmena H. 60 cm dlhé H-kotvy sú vyrobené z pozinkovanej plochej ocele na zabetónovanie do vlastného bodového základu. Kotvy pevne spájajú stĺpiky s podkladom a zaručujú vysokú stabilitu. Plochá strecha prístrešku je k dispozícii v dvoch variantoch - z hliníkových panelov (horná strana antracitová, spodná strana svetlo sivá) s trapézovým profilom (ALU) alebo s 19 mm strešným debnením s perodrážkou s dostatočným množstvom EPDM fólie. Strešná krytina z hliníkových panelov je nerozbitná a odolná proti krúpam, môže byť ale hlučná pri daždi. Je vysoko stabilná a tvarovo stála aj pri vysokých povrchových teplotách. Strecha je dodávaná s plastovými zvodmi.
Zaťaženie snehom:
Maximálne zaťaženie snehom tejto strechy je 1 kN/m2. Spravidla úplne postačí zaťaženie snehom 0,75 kN/m2. Vyššie zaťaženie snehom je vyžadované iba vo vyšších nadmorských výškach. Presné informácie Vám poskytne obecný alebo stavebný úrad.
Informácie o výrobcovi
SKAN HOLZ Europe GmbH
Im Alten Dorfe 10
21227 Bendestorf
info@skanholz.com
4018211038664
Technické špecifikácie
| Vlastnosti výrobku | |
|---|---|
| Základná plocha: | 33,99 m² |
| Druh: | Samostatný prístrešok pre auto |
| Hrúbka stĺpa: | 12 x 12 cm |
| Zakrytie strechy: | Hliníkové dvojité dosky, lesklé |
| Šírka čelný pohľad: | 427 cm |
| Výška vrcholu: | 251 cm |
| Šírka vjazdu: | 395 cm |
| Výška vjazdu: | 225 cm |
| Farba: | Bridlicovo šedá |
| Druh dreva: | Smrek |
| Materiál konštrukcie: | Lepené drevo |
| Opracovanie povrchu: | Lazúrovaná |
| Zaťaženie snehom: | 95 kg/m² |
| Forma strechy: | Ploché |
| Smer sklonu strechy: | Vzadu |
| Počet požadovaných základov: | 8 základov |
| Odtok vody: | Bez dažďového žliabka |
| Rozmery a hmotnosť (netto) | |
|---|---|
| Hmotnosť: | 610,0 kg |
| Výška: | 2,51 m |
| Šírka: | 4,27 m |
| Hĺbka: | 7,96 m |

















