Bertilo Drevený domček na náradie Einfach 3 Plus, béžová, 385 x 180 cm
Číslo výrobku 2672731Opis výrobku
Číslo výrobku 2672731
Ak ste si mysleli, že montáž záhradného domčeka je zložitá, zdĺhavá a nákladná, montovaný dom Bertilo vás vyvedie z omylu. Dom z prefabrikovaných prvkov sa ľahko montuje, nevyžaduje žiadne ďalšie zručnosti a naviac máte možnosť stráviť pár hodín na čerstvom vzduchu s priateľmi a rodinou.
Výhody:
- Jednoduchý a cenovo výhodný model so stenami hrúbky 12 mm
- Prevedenie s osvedčenou modulárnou konštrukciou so silnými rohovými a elementárnymi spojmi
- Vysoké dvojkrídlové dvere a vyššie bočné steny poskytujú dostatok úložného priestoru
- Všetky diely sú kompletne prefabrikované - nie je potrebné žiadne rezanie alebo skrutkovanie jednotlivých stenových dosiek.
Súčasťou balenia je:
- Predĺženie strechy
- Kompletná súprava (bez strešnej lepenky)
- Podlaha
Technické parametre:
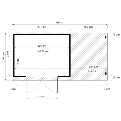
- Rozmery steny bez presahu strechy: 384 x 179 cm
- Podlahová plocha: 6,89 m2
- Objem: 7,7 m3
- Hrúbka steny: 12 mm
- Plocha steny: 15,00 m2
- Hrúbka strechy: 12 mm MFP P5
- Plocha strechy: 8,03 m2
- Sklon strechy: 5,6°
- Zaťaženie snehom: 0,85 kN/m2
- Rozmery otvoru dverí: 142 x 178 cm
Základy
Najdôležitejším predpokladom pre správnu stavbu záhradného domčeka je presne vyrovnaný základ. Pre vykonanie základu je rozhodujúci stav podložia. Medzi základom a podlahovými prvkami by mala byť zaistená cirkulácia vzduchu, aby sa zabránilo podmáčaniu pod záhradným domčekom.
Ošetrenie ochranou dreva
Všetky neošetrené prvky z masívneho dreva by mali byť ošetrené impregnáciou na drevo, aby sa zabránilo poškodeniu, ako je zmena farby a hniloba dreva spôsobená poveternostnými vplyvmi a vlhkosťou.
Drevený základňový rám záhradného domčeka je nutné pred pokládkou ošetriť impregnáciou dreva pre styk so zemou. Dôrazne sa odporúča používať pásy alebo podložky vyrobené z gumových granúl, aby sa zabránilo priamemu kontaktu s pôdnou vlhkosťou.
Základnové hranoly ani gumené podložky nie sú súčasťou balenia.
Farebná úprava
Nanášanie farby na profilové dosky prebieha pred výrobou. Prvky sú ošetrené strojovým striekaním - základným náterom a finálnou úpravou. Tým sú profilové dosky chránené zvonku, vrátane drážky a pera.
Na farbenie boli použité vodou riediteľné farby v polomatných odtieňoch zo škandinávskej produkcie (NORDICA EKO/TEKNOS), ktoré sú označené severskou ekologickou značkou Nordic Swan Ecolabel. Odtieň "béžová" zodpovedá RAL 7006 (béžovosivá). Krycie a zakončovacie lišty sú ošetrené antracitovou farbou (RAL 7016). Následné úpravy je možné vykonávať ľubovoľnými farebnými odtieňmi.
Strešná krytina
Strecha je vyrobená z multifunkčných panelov (MFP) hrúbky 12 mm a kategórie P5 (odolnosť proti vlhkosti).
V záujme ochrany životného prostredia v Bertilo úplne upustili od strešnej lepenky pre počiatočné krytie a od začiatku roka 2025 už nie je strešná lepenka zahrnutá v rozsahu dodávky.
Pre pultové strechy odporúčame použiť komerčne dostupné osvedčené riešenia ako bitúmenové pásy (KSK fólie) alebo EPDM fólie v rôznych prevedeniach. Vhodnú strešnú krytinu nejdete na e-shope v kategórii Strešné krytiny, na markete požiadajte o radu svojho predajcu.
Odporúčané zapojenie prvkov
Ako doplnkovú ochranu proti vnikaniu vlhkosti sa odporúča pri montáži chrániť spoje rámov prvkov vhodným silikónom. Pred priskrutkovaním sa na rám prvku, ktorý má byť pripevnený, jednoducho naneste prúžok silikónu.
Inštalácia okien
Aby sa zabránilo prenikaniu vlhkosti a aby bolo zaistené pevné spojenie skla s rámom a zasklievacími lištami, mal by byť pred montážou na okraje skla aplikovaný silikón.
CERTIFIKÁCIA FSC
Spoločnosť Baltic Connexions OÜ vyrábajúci pod značkou Bertilo vyrába svoje produkty z materiálov nesúcich certifikáciu FSC (Forest Stewardship Council). Značka FSC označuje produkty z dreva pochádzajúceho z ekologicky a sociálne udržateľných lesov.
Informácie o výrobcovi
Baltic Connexions OÜ
Voldi tee 10
49127 Tabivere
service@balcon.ee
4742686005981
Technické špecifikácie
| Vlastnosti výrobku | |
|---|---|
| Hĺbka vrát. presahu strechy: | 200 cm |
| Prechodová výška dverí: | 178 cm |
| Šírka čelnej strany vrát. presahu strechy: | 395 cm |
| Strešná plocha: | 8,03 m² |
| Odporúčania týkajúce sa používania: | K úschove predmetov |
| obsahuje podlahu: | S podlahou |
| Obsahuje strešnú krytinu: | Žiadne |
| Konštrukcia: | Prvkový stavebný systém |
| Štýl: | Moderný |
| Maximálne zaťaženie snehom: | 87 kg/m² |
| Počet izieb: | 1 ks |
| Výška hrebeňa: | 211 cm |
| Hrúbka steny: | 12 mm |
| Prechodová šírka dverí: | 142 cm |
| Tvar strechy: | Pultová |
| Celkový pôdorys (základný rozmer sokla): | 8 m² |
| Hĺbka základu vr. zastrešenej vonkajšej plochy: | 200 cm |
| Šírka_rozmer základov a zastreš. vonk. plocha: | 395 cm |
| Hĺbka základu bez vonkajšej plochy: | 200 cm |
| Šírka sokla bez vonkajšej plochy: | 252 cm |
| Hrubý priestorový obsah, len domček: | 7,7 m³ |
| Presah strechy vpredu: | 14 cm |
| Pestovanie: | S prístavbou |
| Pôdorys vonkajšej plochy (rozmer sokla): | 6,89 m² |
| Hrubý obsah domu vr. vonkajšej plochy: | 12,1 m³ |
| Rozmer základu_plocha domu bez vonkajš.priest.: | 4,3 m² |
| Tvar domu: | Hranatý |
| Povrchová úprava: | Lazúrovaná |
| Rozmery a hmotnosť (netto) | |
|---|---|
| Hmotnosť: | 283,0 kg |
| Výška: | 49,0 cm |
| Šírka: | 189,0 cm |
| Hĺbka: | 117,0 cm |















